Bạn đang cần tìm một đơn vị thiết kế bếp nhà hàng nhỏ 50m2 phục vụ cho sức chứa từ 150 - 250 người với chi phí tiết kiệm thời gian bàn giao nhanh trực tiếp làm việc với xưởng. Bạn không có thời gian để kiểm soát tất cả mọi thứ và cần một đơn vị uy tín có thể thiết kế và lắp đặt khu vực bếp 50M2 từ A - Z. Hãy để Inox Vĩnh Hoàng giúp bạn, chúng tôi có hơn 10 năm kinh nghiệm trong thi công các dự bán bếp nhà hàng quy mô từ nhỏ đến lớn trên cả nước, cam kết mang đến cho khách hàng sự hài lòng nhất.
1. 5 khu vực cần thiết cho bếp nhà hàng nhỏ 50m2
Dù ở quy mô nào nhỏ hay lớn thì căn bếp nhà hàng muốn hoạt động tốt nhất, hiệu quả nhất thì nhất định phải đảm bảo đầy đủ các khu vực bao gồm: Khu sơ chế, khu bảo quản, khu nấu nướng, khu ra thức ăn, khu vệ sinh dụng cụ sau sử dụng. Cụ thể công dụng của từng khu vực như sau:
1.1 Khu sơ chế
Nơi tiếp nhận thực phẩm và vệ sinh, rửa thực phẩm đầu vào. Tại đây nhân viên bếp sẽ tiến hành sàng lọc phân chia thực phẩm thành từng loại riêng biệt sau đó sẽ tiến hành sơ chế tạm thời. Bởi vậy khu vực này thường sẽ được trang bị các thiết bị để rửa thực phẩm bao gồm: chậu rửa, kệ inox, bàn inox và các dụng cụ hỗ trợ vệ sinh khác.

Khu sơ chế bếp nhà hàng nhỏ
1.2 Khu bảo quản
Thực phẩm sau khi được vệ sinh tại khu sơ chế sẽ tiến hành đưa vào khu bảo quản để lưu chữ và chờ chế biến. Tại đây chủ đầu tư sẽ cần trang bị các thiết bị bảo quản lạnh như: tủ đông tủ mát, bàn đông, bàn mát,...
1.3 Khu nấu nướng
Đây là khu vực chế biến các món ăn và tại đây sẽ được trang bị các thiết bị bếp nấu chuyên dụng cho từng loại món ăn mà nhà hàng phục vụ. Với các nhà hàng nấu món ăn á thường bố trí khu vực này dọc tường, các loại bếp á dùng để nấu sẽ được áp lưng tựa vào tường để tiếp kiệm diện tích. Còn với các nhà hàng nấu món âu các thiết bị nấu sẽ là bếp âu cụ thể là các dòng bếp âu 4 honjh, 6 họng và thiết bị bếp nướng phẳng, bếp nướng than, tất cả chúng thường được bố trí dạng ốc đảo ở trung tâm không gian căn bếp nhà hàng.
Ngoài ra, khu vực này còn được trang bị các hệ thống thoát khí bao gồm tum hút khói và quạt gió để lưu thông khói và mùi phát ra trong quá trình nấu nướng đồ ăn đảm bảo vệ sinh an toàn thực phẩm cho món ăn và không gian thoáng mát thoải mái cho người đầu bếp.

Khu nấu nướng bếp nhà hàng nhỏ
1.4 Khu ra thức ăn
Đây là nơi tiếp nhận thức ăn từ khu nấu nướng. Tại đây các nhân viên nhà hàng sẽ tiếp trực trang trí thêm cho món ăn sinh động hơn. Thường thì khu vực này sẽ trang bị một bàn inox loại to và một số dụng cụ cần thiết để dễ dàng thao tác cho việc hoạt thiệt món ăn trước khi đưa lên cho khách hàng.

Khu ra thức ăn bố trí đối diện khu bếp nấu tiện dụng
1.5 Khu vệ sinh dụng cụ sau sử dụng
Tại đây người nhân viên sẽ tiến hành vệ sinh các thiết bị đồ dùng đã qua sử dụng và cất giữa chúng. Các thiết bị sử dụng cho khu vực này bao gồm: Thùng rác inox, chậu rửa, kệ inox dạng đứng hoặc kệ inox gắn tường, tủ inox treo tường và tủ sấy bát đĩa.
2. Chi phí để hoàn thiện một khu bếp nhà hàng nhỏ 50m2 gồm những gì?
Tổng chi phí để hoàn thiện một căn bếp nhà hàng loại nhỏ phần lớn phụ thuộc vào các trang thiết bị lắp đặt bên trong nó. Tại Inox Vĩnh Hoàng nói riêng và trên thị trường Việt Nam nói chung thì sẽ chỉ chế tạo các thiết bị như bàn inox, chậy rửa, kệ inox hay tủ cơm, các loại bếp á và tum hút mùi. Còn thiết bị lạnh và các dòng bếp u sẽ được nhập khẩu. Bởi vậy về chi phí cao hay thấp sẽ phụ thuộc và chủ đầu tư muốn sử dụng những loại thiết bị nào cho căn bếp của mình. Bạn có thể tham khảo bản báo giá dưới đây.
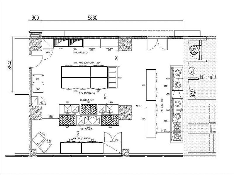
3. Các thiết kế bếp nhà nhỏ phổ biến hiện nay
Có nhiều cách bố trí và thiết kế không gian cho bếp nhà hàng nhỏ 50m2 khác nhau. Tùy vào hình dạng mặt bằng cụ thể chuyên gia sẽ thiết kế và bố trí thiết bị sao cho hợp lý. Dưới đây là một vài kiểu thiết kế mà bạn có thể tham khảo.






4. Chính sách cho khách hàng khi setup bếp nhà hàng 50m2 trọn gói tại Inox Vĩnh Hoàng
Inox Vĩnh Hoàng đã có hơn 10 năm kinh nghiệm thiết kế và gia công các dự án bếp nhà hàng với quy mô từ nhỏ đến lớn. Chúng tôi hiểu được khách hàng cần tối ưu những loại chi phí nào và cần những thiết bị nào để cho căn bếp của bạn hoạt động hiệu quả nhất. Inox Vĩnh Hoàng sẽ khảo sát trực tiếp và đưa ra phương án tốt nhất cho quý khách cân bằng lợi ích đôi bên.
Tất cả các thiết bị mà Inox Vĩnh Hoàng cung cấp trong một dự án sẽ được bảo hành từ 1- 2 năm tùy từng loại thiết bị. Ngoài ra, cty hỗ trợ bảo trì định kỳ trọn đời với chi phí siêu tốt. Với bất cứ sự cố nào về thiết bị khách hàng chỉ cần liên hệ vào hotline 0989885498 sẽ luôn có kỹ thuật túc trực 24/7 để tiếp nhận và xử lý yêu cầu, đảm bảo các sự cố của thiết bị sẽ được khắc phục nhanh nhất không làm gián đoạn công việc kinh doanh của khách hàng. Chúng tôi hiểu rằng chỉ cần một thiết bị lỗi sẽ làm căn bếp giảm hiệu suất ảnh hưởng lớn đến doanh thu của nhà hàng và chúng tôi không cho phép xảy ra điều đó.
Hãy liên hệ với Inox Vĩnh Hoàng theo số 0989885498 để cùng đưa ra giải pháp cho dự án sắp tới của bạn! Trân trọng cảm ơn!