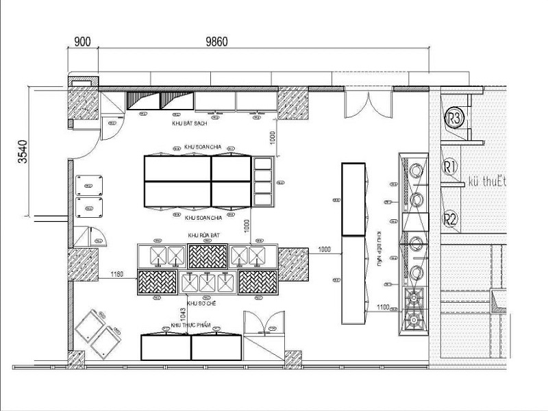
Trước khi thiết kế một căn bếp nhà hàng thì điều đầu tiên người chủ đầu tư cần quan tâm chính là mặt bằng. Với mỗi một diện tích khác nhau sẽ có một bản vẽ thiết kế bếp nhà hàng khác nhau. Dưới đây là các mẫu bản vẽ mặt bằng của bếp nhà hàng phổ biến nhất mà Inox Vĩnh Hoàng muốn gửi tới bạn tham khảo.
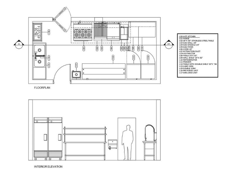
(Lưu ý: các ảnh bên trên là bản vẽ 2D, và các ảnh bên dưới là bản vẽ 3D trực quan)
Nếu bạn đang cần tìm đơn vị thiết kế và thi công bếp nhà hàng trọn gói hãy liên hệ ngay với Inox Vĩnh Hoàng qua hotline 0989885498!
Tổng hợp các bản vẽ thiết kế mặt bằng bếp nhà hàng phổ biến nhất
























Inox Vĩnh Hoàng - Nhà thầu thi công bếp nhà hàng trọn gói uy tín chất lượng - 0989885498