Inox Vĩnh Hoàng là đơn vị đã có hơn 10 năm kinh nghiệm trong tư vấn thiết kế thi công lắp đặt bếp nhà hàng. Chúng tôi đã thi công bếp nhà hàng cho hàng ngàn công trình lớn nhỏ trên cả nước. Bằng những kinh nghiệm sẵn có và đội ngũ kỹ sư giỏi, chúng tôi sẽ giúp bạn lên ý tưởng thiết kế, tối ưu chi phí và dành cho bạn những ưu đãi về chiết khấu tốt nhất. Mọi thông tin hãy theo dõi thêm trong bài viết dưới đây.
1. Chi phí trong một dự án thiết kế thi công bếp nhà hàng gồm những gì?
Khu bếp nhà hàng là nơi tập hợp tất cả các thiết bị nấu nướng phục vụ cho công việc nấu đồ ăn của mỗi nhà hàng. Bởi vậy, chi phí để hoàn thành một căn bếp nhà hàng chủ yếu nằm ở chi phí thiết bị. Mỗi một quy mô nhà hàng và diện tích khác nhau Inox Vĩnh Hoàng sẽ tư vấn cho khách hàng các phương án thích hợp nhất. Dưới đây là tổng hợp các chi phí thiết bị theo khu vực trong một căn bếp của nhà hàng theo tiêu chuẩn.
- Chi phí cho khu vực nấu: Khu vực nấu là nơi diễn ra các hoạt động nấu nướng đồ ăn vì thế hệ thống các thiết bị bếp công nghiệp chiếm phần lớn chi phí đầu tư ở khu vực này. Tùy theo kiểu món ăn của từng nhà hàng là gì? mà người chủ sẽ lựa chọn các thiết bị bếp cho hợp lý. Ví dụ nhà hàng tập chung chủ yếu vào các món á thì các trang bị bếp á sẽ nhiều hơn điển hình gồm: bếp á 2 họng, bếp á đôi quạt thổi bầu nước, các thiết bị bếp điện từ, nồi hầm, bếp hầm,... (tham khảo giá bếp á) Còn với các nhà hàng phục vụ món Âu thì cần trang bị các thiết bị bếp âu như bếp âu 4 họng, các loại bếp âu có lò nướng... Vui lòng liên hệ trực tiếp với hotline 0989885498 để nhận tư vấn và báo giá tốt nhất.
- Chi phí cho khu vực sơ chế: Tại khu vực này sẽ diễn ra các hoạt động sơ chế thực phẩm và soạn chia bởi vậy bạn cần bỏ tiền ra để trang bị các thiết bị như: kệ inox, bàn inox, chậu rửa công nghiệp, các loại tủ inox, thùng rác,...
- Chi phí cho khu vực tích trữ: Nơi đây sẽ là nơi tích trữ thực phẩm đã xử lý ở khu sơ chế bởi vậy các chi phí mà bạn cần bỏ ra phần lớn là để mua trang thiết bị lạnh. Một số loại thiết bị lạnh điển hình cho các dự án bếp nhà hàng bao gồm: tủ đông, tủ mát, bàn mát,...
- Chi phí cho khu vực vệ sinh: tại đây sẽ diễn ra các công việc xử lý đồ dùng dụng cụ đã qua sử dụng vì thế bạn sẽ cần mua các trang thiết bị như chậu rửa, bát inox, tủ sấy, kệ inox, thùng rác inox,...
- Chi phí cho hệ thống thông gió: bao gồm hệ thống tum hút mùi và quạt thông gió.
Trên đây chỉ liệt kê ra các chi phí liên quan để thiết bị inox mà Inox Vĩnh Hoàng cung cấp.
Các chi phí khác như điện, hệ thống ống dẫn gas, hệ thống thoát nước,... chúng tôi sẽ không đề cập ở đây. Để rõ hơn bạn có thể tham khảo chi tiết bản báo giá một khu bếp nhà hàng bên dưới Inox Vĩnh Hoàng gửi cho khách hàng.
2. Sự khác biệt của chúng tôi so với các đơn vị khác
Inox Vĩnh Hoàng là đơn vị xưởng sản xuất trực tiếp các thiết bị inox cho nhà hàng với hơn 10 năm kinh nghiệm. Chúng tôi hiểu được các chủ đầu tư cần gì và sẽ tự cân đối sao cho phù hợp nhất với quy mô của bạn. Hãy yên tâm tất cả mức giá mà chúng tôi đưa ra cho quý khách sẽ luôn ở mức chiết khấu tốt nhất. Bên cạnh đó các thủ tục giấy tờ liên quan đều sẽ được giải quyết nhanh gọn minh bạch. Chúng tôi tôn trọng ý kiến của khách hàng bởi vậy trong quá trình báo giá khách hàng có thể làm việc trực tiếp với chuyên viên kỹ thuật để tối ưu thiết bị theo yêu cầu của quý khách đảm bảo đúng như tưởng tượng của quý khách. Sau quá trình thi công và lắp đặt Inox Vĩnh Hoàng sẽ duy trì khảo sát và bảo trì các thiết bị theo sự thống nhất từ đầu của chúng tôi và khách hàng giúp quý khách an tâm phát triển công việc kinh doanh của mình. Định hướng mục tiêu cùng khách hàng mở rộng quy mô nhà hàng thành các chuỗi nhà hàng lớn trong khắp khu vực. Hãy liên hệ với Inox Vĩnh Hoàng để chúng ta cùng thực hiện mục tiêu đó 0989885498.
3. Quy trình thiết kế và lắp đặt
Một dự án thi công khu bếp nhà hàng được Inox Vĩnh Hoàng thực hiện qua 12 bước bao gồm:
Bước 1: Tiếp nhận thông tin dự án từ phía khách hàng, xác định mong muốn và yêu cầu của khách hàng để ra.
Bước 2: Khảo sát mặt bằng thực tế. Chuyên viên của Inox Vĩnh Hoàng sẽ đến tận nơi để lên bản vẽ sơ bộ cho không gian bếp của bạn để đưa ra các phương án sắp xếp các thiết bị tối ưu nhất.
Bước 3: Lên bản vẽ các thiết bị được liệt kê trong phương án trình bày ở bước 2. Sau khi đã lên bản vẽ của các thiết bị, Inox Vĩnh Hoàng sẽ gửi báo giá tới khách hàng. Khách hàng có thể thoải mái tùy chỉnh thông số thiết bị trong giai đoạn này sao cho ưng ý nhất. Khi nào tất cả các thông số có sự thống nhất giữa 2 bên thì chúng tôi sẽ tiến hành sang bước 4
Bước 4: Tiến hành chế tạo các thiết bị đã được thống nhất tại bước 3. Với một số máy móc đặc biệt như bàn đông, tủ đông... Inox Vĩnh Hoàng sẽ tiến hành nhập thiết bị với thời gian từ 15 - 20 ngày.
Bước 5: Theo đúng thời gian trên hợp đồng chúng tôi sẽ tiến hành thi công lắp đặt. Chung tôi sẽ lắp đặt theo từng giai đoạn. Các thiết bị cần lắp đặt trong từng giai đoạn sẽ được Inox Vĩnh Hoàng thống nhất với khách hàng trong quá trình thương thảo.
Bước 6: Chạy thử nghiệm tất cả các thiết bị trong khu bếp nhà hàng để kiểm tra tính ổn định và an toàn.
Bước 7: Hướng dẫn đào tạo nhân viên của nhà hàng cách sử dụng thiết bị sao cho hợp lý, cách vệ sinh và quy trình an toàn khi thao tác với thiết bị.
Bước 8: Bàn giao và nghiệm thu
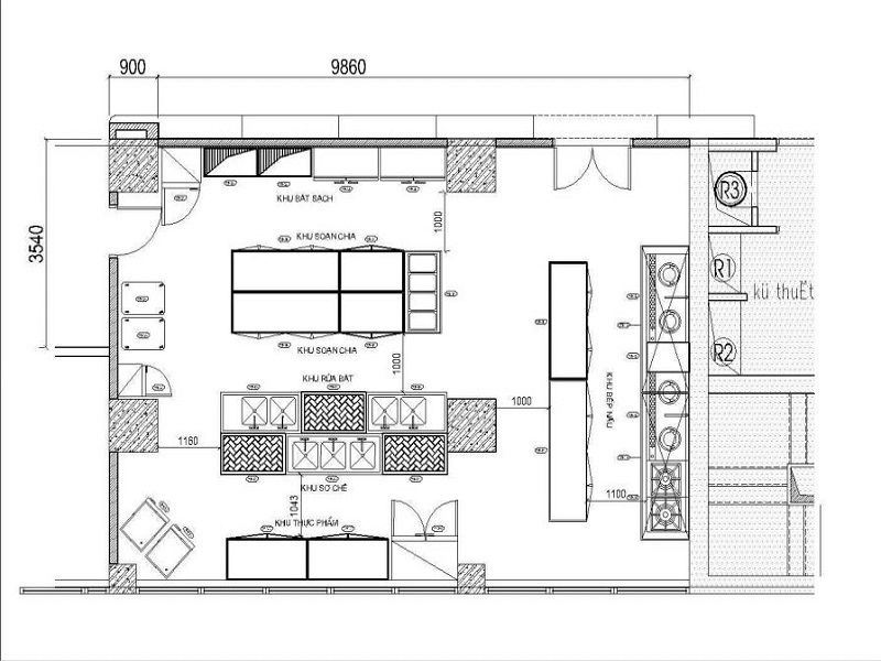
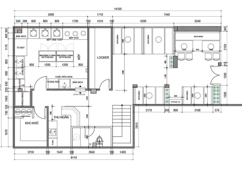
4. Bản vẽ thiết kế bếp nhà hàng




5. Ảnh dự án bếp nhà hàng thực tế mà Inox Vĩnh Hoàng đã thi công









